Поможем найти офис в аренду!
Снять офис
Москва, Орджоникидзе д.11 с.11

Жилой дом "Люсиновская, 55"

  • Помещение 108 м2 Жилой дом Люсиновская, 55 – фото объекта
  • Помещение 108 м2 Жилой дом Люсиновская, 55 – фото объекта
  • Помещение 108 м2 Жилой дом Люсиновская, 55 – фото объекта
  • Помещение 108 м2 Жилой дом Люсиновская, 55 – фото объекта
  • Помещение 108 м2 Жилой дом Люсиновская, 55 – фото объекта
  • Помещение 108 м2 Жилой дом Люсиновская, 55 – фото объекта
  • Помещение 108 м2 Жилой дом Люсиновская, 55 – фото объекта
Помещение 108 м2 Жилой дом Люсиновская, 55 – фото объектаПомещение 108 м2 Жилой дом Люсиновская, 55 – фото объектаПомещение 108 м2 Жилой дом Люсиновская, 55 – фото объектаПомещение 108 м2 Жилой дом Люсиновская, 55 – фото объектаПомещение 108 м2 Жилой дом Люсиновская, 55 – фото объектаПомещение 108 м2 Жилой дом Люсиновская, 55 – фото объектаПомещение 108 м2 Жилой дом Люсиновская, 55 – фото объекта
108 м2
Адрес: Москва, Люсиновская, 55
Тип недвижимости: Жилой дом
Округ: ЮАО
Метро: Тульская (9 минут пешком)
Шаболовская (11 минут пешком)
Серпуховская (12 минут пешком)
Класс объекта: B
Тип помещения: Офисное
Наличие мебели: Без мебели
ПАРКОВКА
Подземная:
нет
Наземная:
нет
Городская:
да
Платная60 руб. в час
В аренду предлагается двухуровневое офисное помещение в стиле ЛОФТ на 1 и -1 этажах площадью 108 кв. м. Здание оснащено всеми условиями, необходимыми для комфортного пребывания арендаторов. В офисном блоке выполнена качественная отделка. Помещение готово к въезду арендаторов. Мы работаем 24/7. Звоните!
Площадь, м2 Этаж Стоимость, м2/год Стоимость в месяц
108 1 35 000 руб. 315 000 руб.


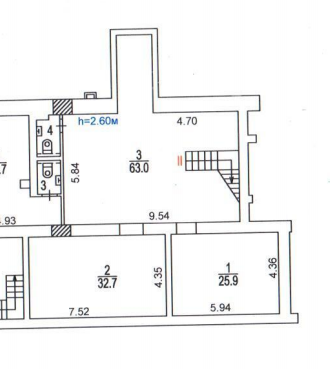
План помещения

Помещение 108 м2
Налоги Состояние Тип
УСН С отделкой Офисное

Организовать просмотр

Я даю согласие на обработку моих персональных данных в соответствии с Условиями

Другие помещения в данном бизнес-центре

Площадь: 88 м2

  • Этаж: 5
  • Тип помещения: Офисное
  • Состояние: С отделкой
  • Наличие мебели: Без мебели
  • Стоимость: 45000 руб. за м2 в год

Площадь: 100.5 м2

  • Этаж: 1
  • Тип помещения: Офисное
  • Состояние: С отделкой
  • Наличие мебели: Без мебели
  • Стоимость: 45000 руб. за м2 в год

Площадь: 120 м2

  • Этаж: 1
  • Тип помещения: Офисное
  • Состояние: С отделкой
  • Наличие мебели: Без мебели
  • Стоимость: 45000 руб. за м2 в год