Поможем найти офис в аренду!
Снять офис
Москва, Орджоникидзе д.11 с.11

Бизнес-центр "3-й Сыромятнический"

  • Помещение 86 м2 Бизнес-центр 3-й Сыромятнический – фото объекта
Помещение 86 м2 Бизнес-центр 3-й Сыромятнический – фото объекта
86 м2
Тип недвижимости: Бизнес-центр
Округ: ЦАО
Район: Таганский
Метро: Чкаловская (5 минут пешком)
Курская (7 минут пешком)
Римская (13 минут пешком)
Класс объекта: B
Тип помещения: Офисное
Наличие мебели: Без мебели
ПАРКОВКА
Подземная:
нет
Наземная:
да
коэф. 1/1003 000 руб.
Городская:
да
Платная60 руб. в час
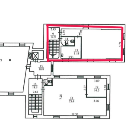
В аренду предлагается офисное помещение, площадью 86 м2 на 7 этаже в бизнес-центре класса «В». Коммерческие условия: Арендная ставка- 17 000 руб. м2 год, УСН, включая эксплуатационные и коммунальные расходы. Описание помещения: Блок смешанной планировки: open space, 2 кабинета и с/у. Выполнена стандартная офисная отделка. Описание здания: Удобное расположение: в пешей доступности от станции метро «Чкаловская» и «Курская». На территории здания располагается наземный паркинг- 3 000 руб. мес. 1 м./м., а также отделения банка, магазин и столовая. БЦ оборудован всеми необходимыми коммуникациями для комфортной работы и отдыха арендатора. Помещение готово к въезду.
Площадь, м2 Этаж Стоимость, м2/год Стоимость в месяц
86 7 17 000 руб. 121 833 руб.


План помещения

Помещение 86 м2
Налоги Состояние Тип
УСН С отделкой Офисное

Организовать просмотр

Я даю согласие на обработку моих персональных данных в соответствии с Условиями

Другие помещения в данном бизнес-центре

Площадь: 108 м2

  • Этаж: 0
  • Тип помещения: Офисное
  • Состояние: С отделкой
  • Наличие мебели: Без мебели
  • Стоимость: 10000 руб. за м2 в год

Площадь: 193 м2

  • Этаж: 3
  • Тип помещения: Офисное
  • Состояние: С отделкой
  • Наличие мебели: Без мебели
  • Стоимость: 15000 руб. за м2 в год

Площадь: 220 м2

  • Этаж: 8
  • Тип помещения: Офисное
  • Состояние: С отделкой
  • Наличие мебели: Без мебели
  • Стоимость: 17000 руб. за м2 в год