Поможем найти офис в аренду!
Снять офис
Москва, Орджоникидзе д.11 с.11

Бизнес-центр "Yan-Ron"

Увы, офисное помещение уже сдано. Свяжитесь с нами для уточнения информации.
  • Помещение 504 м2 Бизнес-центр Yan-Ron – фото объекта
  • Помещение 504 м2 Бизнес-центр Yan-Ron – фото объекта
  • Помещение 504 м2 Бизнес-центр Yan-Ron – фото объекта
  • Помещение 504 м2 Бизнес-центр Yan-Ron – фото объекта
Помещение 504 м2 Бизнес-центр Yan-Ron – фото объектаПомещение 504 м2 Бизнес-центр Yan-Ron – фото объектаПомещение 504 м2 Бизнес-центр Yan-Ron – фото объектаПомещение 504 м2 Бизнес-центр Yan-Ron – фото объекта
504 м2
Адрес: Москва, Последний переулок, 11с1
Тип недвижимости: Бизнес-центр
Округ: ЦАО
Район: Мещанский
Метро: Трубная (5 минут пешком)
Сухаревская (5 минут пешком)
Цветной бульвар (5 минут пешком)
Класс объекта: B+
Тип помещения: Офисное
Наличие мебели: Без мебели
ПАРКОВКА
Подземная:
да
коэф. 1/20030 000 руб.
Наземная:
да
коэф. 1/10014 400 руб.
Городская:
да
Платная60 руб. в час
В Бизнес-центре "В+" класса "Yan-Ron", предлагается помещение 504 кв.м. Помещение расположено на 3 этаже здания, представляет из себя Смешанную планировку: опен-спейс, 6 кабинетов, зона ресепшн, миникухня, санузел. В здании произведены все современные коммуникации. Здание охраняемое, работает пропускная система, круглосуточная охрана, система видеонаблюдение. На территории подземный и наземный паркинг. Удобное расположение, здание находится всего в 6-ти минутах ходьбы от станции метро "Сухаревская".
Площадь, м2 Этаж Стоимость, м2/год Стоимость в месяц
504 6 25 000 руб. 1 050 000 руб.


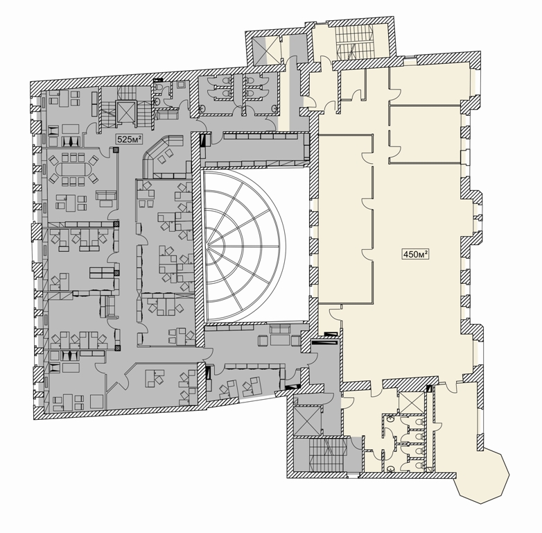
План помещения

Помещение 504 м2
Налоги Состояние Тип
НДС оплачивается отдельно С отделкой Офисное

Организовать просмотр

Я даю согласие на обработку моих персональных данных в соответствии с Условиями

Другие помещения в данном бизнес-центре

Площадь: 45 м2

  • Этаж: 3
  • Тип помещения: Офисное
  • Состояние: С отделкой
  • Наличие мебели: С мебелью
  • Стоимость: 24000 руб. за м2 в год

Площадь: 52 м2

  • Этаж: 3
  • Тип помещения: Офисное
  • Состояние: С отделкой
  • Наличие мебели: Без мебели
  • Стоимость: 30000 руб. за м2 в год

Площадь: 53 м2

  • Этаж: 7
  • Тип помещения: Офисное
  • Состояние: С отделкой
  • Наличие мебели: Без мебели
  • Стоимость: 30000 руб. за м2 в год