Поможем найти офис в аренду!
Снять офис
Москва, Орджоникидзе д.11 с.11

Бизнес-центр "Baker Plaza"

  • Помещение 220.5 м2 Бизнес-центр Baker Plaza – фото объекта
Помещение 220.5 м2 Бизнес-центр Baker Plaza – фото объекта
220.5 м2
Адрес: Москва, Бутырский Вал, 68-70
Тип недвижимости: Бизнес-центр
Округ: ЦАО
Район: Тверской
Метро: Савеловская (6 минут пешком)
Менделеевская (11 минут пешком)
Новослободская (14 минут пешком)
Класс объекта: B+
Тип помещения: Офисное
Наличие мебели: Без мебели
ПАРКОВКА
Подземная:
нет
Наземная:
да
коэф. 1/18010 000 руб.
Городская:
да
Платная60 руб. в час
В аренду предлагается офисный блок площадью 220,5 кв. м. в бизнес- центре "Baker Plaza". Помещение с качественной отделкой, кабинетной планировки с собственным с/у. Офис готов к въезду! Бизнес- центр класса "В+" оснащен всеми современными инженерно- техническими коммуникациями, необходимыми для комфортной работы арендаторов. Объект удобно расположен в шаговой доступности от станций метро "Савеловская", "Менделеевская" и "Новослободская", вокруг развитая инфраструктура. Мы всегда на связи, звоните!
Площадь, м2 Этаж Стоимость, м2/год Стоимость в месяц
220.5 3 28 000 руб. 514 500 руб.


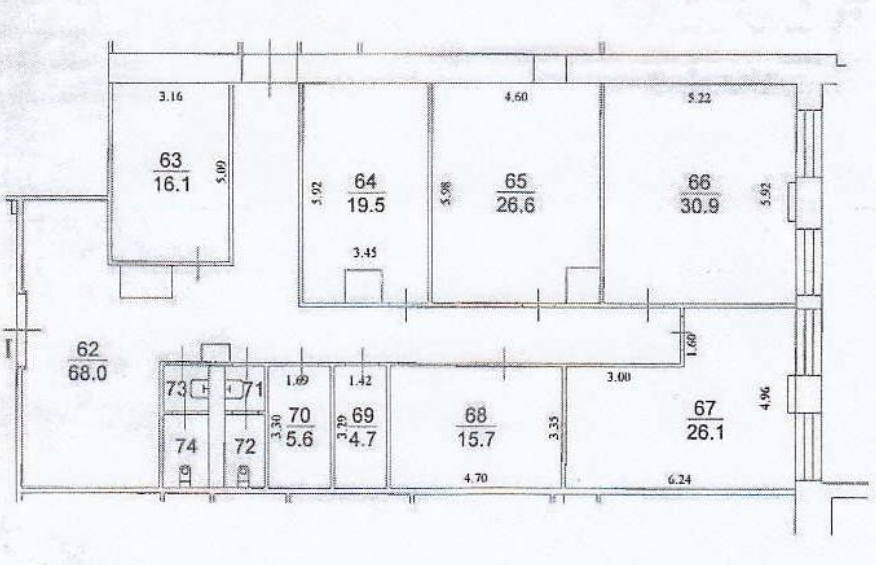
План помещения

Помещение 220.5 м2
Налоги Состояние Тип
УСН С отделкой Офисное

Организовать просмотр

Я даю согласие на обработку моих персональных данных в соответствии с Условиями

Другие помещения в данном бизнес-центре

Площадь: 86.4 м2

  • Этаж: 2
  • Тип помещения: Офисное
  • Состояние: С отделкой
  • Наличие мебели: Без мебели
  • Стоимость: 28000 руб. за м2 в год

Площадь: 150 м2

  • Этаж: 4
  • Тип помещения: Офисное
  • Состояние: С отделкой
  • Наличие мебели: Без мебели
  • Стоимость: 22881 руб. за м2 в год

Площадь: 153.3 м2

  • Этаж: 1
  • Тип помещения: Офисное
  • Состояние: С отделкой
  • Наличие мебели: Без мебели
  • Стоимость: 28000 руб. за м2 в год