Поможем найти офис в аренду!
Снять офис
Москва, Орджоникидзе д.11 с.11

Бизнес-центр "ЭКО"

  • Помещение 881.65 м2 Бизнес-центр ЭКО – фото объекта
Помещение 881.65 м2 Бизнес-центр ЭКО – фото объекта
881.65 м2
Адрес: Москва, Мироновская, 25
Тип недвижимости: Бизнес-центр
Округ: ВАО
Метро: Измайлово (МЦК) (7 минут пешком)
Семеновская (11 минут пешком)
Партизанская (12 минут пешком)
Класс объекта: B+
Тип помещения: Офисное
Наличие мебели: Без мебели
ПАРКОВКА
Подземная:
да
коэф. 1/1009 000 руб.
Наземная:
нет
Городская:
да
Платная40 руб. в час
В Бизнес-центре "ЭКО" в аренду сдается офисное помещение площадью 881,65 кв.м. Возможно деление на блоки 298 кв.м и 316 кв.м Бизнес-центр расположен по адресу: г. Москва, ул. Мироновская, д.27., в двенадцати минутах ходьбы от метро Семеновская. Здание класса В+. В БЦ имеется подземный паркинг и развитая инфраструктура.
Площадь, м2 Этаж Стоимость, м2/год Стоимость в месяц
881.65 13 12 500 руб. 918 385 руб.


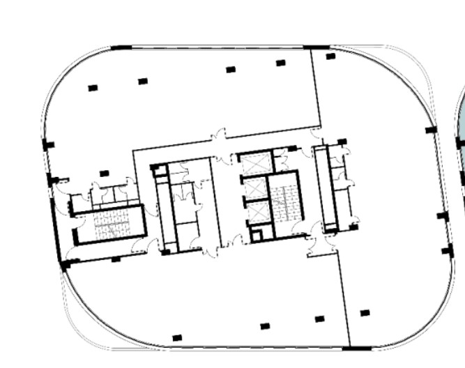
План помещения

Помещение 881.65 м2
Налоги Состояние Тип
НДС оплачивается отдельно Под отделку Офисное

Организовать просмотр

Я даю согласие на обработку моих персональных данных в соответствии с Условиями

Другие помещения в данном бизнес-центре

Площадь: 298 м2

  • Этаж: 8
  • Тип помещения: Офисное
  • Состояние: Под отделку
  • Наличие мебели: Без мебели
  • Стоимость: 10169 руб. за м2 в год

Площадь: 298 м2

  • Этаж: 7
  • Тип помещения: Офисное
  • Состояние: С отделкой
  • Наличие мебели: Без мебели
  • Стоимость: 13983 руб. за м2 в год

Площадь: 312 м2

  • Этаж: 8
  • Тип помещения: Офисное
  • Состояние: Под отделку
  • Наличие мебели: Без мебели
  • Стоимость: 10169 руб. за м2 в год