Поможем найти офис в аренду!
Снять офис
Москва, Орджоникидзе д.11 с.11

Бизнес-центр "Город Столиц "Москва""

Увы, офисное помещение уже сдано. Свяжитесь с нами для уточнения информации.
  • Помещение 190 м2 Бизнес-центр Город Столиц "Москва" – фото объекта
Помещение 190 м2 Бизнес-центр Город Столиц "Москва" – фото объекта
190 м2
Адрес: Москва, Пресненская набережная, 8с1
Тип недвижимости: Бизнес-центр
Формат объекта: Москва-Сити
Округ: ЦАО
Метро: Деловой центр (1 минута пешком)
Выставочная (4 минуты пешком)
Международная (4 минуты пешком)
Класс объекта: А
Тип помещения: Офисное
Наличие мебели: Без мебели
ПАРКОВКА
Подземная:
да
КОЭФ. 1/10025 000 руб.
Наземная:
нет
Городская:
да
Платная200 руб. в час
В Бизнес- центре "А" класса "Город столиц", предлагается помещение площадью 190 кв.м. Помещение расположено на 2 этаже здания. Помещение кабинетной планировки. В здании предусмотрена многоуровневая система охраны. Удобное расположение, здание расположено в пешей доступности от станций метро "Выставочная" и "Деловой центр". Город Столиц - это бизнес-центр, который обладает довольно развитой инфраструктурой. Для офисных сотрудников на третьем этаже предусмотрена столовая, также в бц есть банкоматы, фитнес-центр и пр. В шаговой доступности расположен тц "Афимолл". Помещение с отделкой, готово к въезду.
Площадь, м2 Этаж Стоимость, м2/год Стоимость в месяц
190 2 36 000 руб. 570 000 руб.


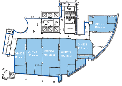
План помещения

Помещение 190 м2
Состояние Тип
С отделкой Офисное

Организовать просмотр

Я даю согласие на обработку моих персональных данных в соответствии с Условиями

Другие помещения в данном бизнес-центре

Площадь: 45 м2

  • Этаж: 28
  • Тип помещения: Офисное
  • Состояние: С отделкой
  • Наличие мебели: С мебелью
  • Стоимость: 48000 руб. за м2 в год

Площадь: 60 м2

  • Этаж: 58
  • Тип помещения: Офисное
  • Состояние: С отделкой
  • Наличие мебели: С мебелью
  • Стоимость: 40000 руб. за м2 в год

Площадь: 105 м2

  • Этаж: 21
  • Тип помещения: Офисное
  • Состояние: С отделкой
  • Наличие мебели: С мебелью
  • Стоимость: 36571 руб. за м2 в год