Поможем найти офис в аренду!
Снять офис
Москва, Орджоникидзе д.11 с.11

Бизнес-центр "Интеграл"

Увы, офисное помещение уже сдано. Свяжитесь с нами для уточнения информации.
  • Помещение 483.2 м2 Бизнес-центр Интеграл – фото объекта
Помещение 483.2 м2 Бизнес-центр Интеграл – фото объекта
483.2 м2
Тип недвижимости: Бизнес-центр
Округ: ЮВАО
Район: Лефортово
Метро: Авиамоторная (11 минут пешком)
Площадь Ильича (20 минут пешком)
Римская (20 минут пешком)
Класс объекта: B+
Тип помещения: Офисное
Наличие мебели: Без мебели
ПАРКОВКА
Подземная:
нет
Наземная:
да
коэф. 1/558 500 руб.
Городская:
да
Платная40 руб. в час
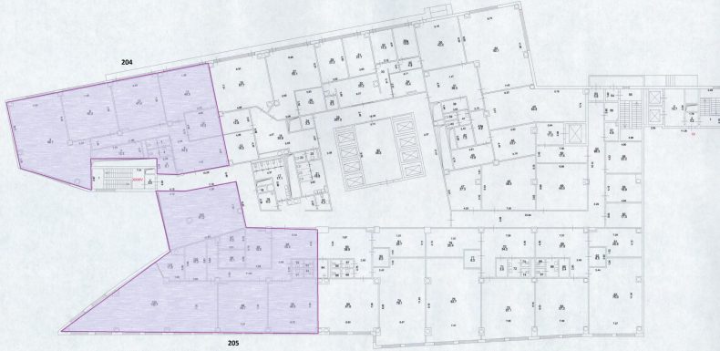
В Бизнес- центре "Интеграл" предлагается помещение площадью 483,2 кв.м. Помещение расположено на 2 этаже здания, кабинетной планировки на плане помещение номер 205. В здании установлены все коммуникации. На территории есть наземный многоуровневый паркинг, развитая инфраструктура. Здание находится в пешей доступности от станции метро "Авиамотроная"
Площадь, м2 Этаж Стоимость, м2/год Стоимость в месяц
483.2 2 18 000 руб. 724 800 руб.


План помещения

Помещение 483.2 м2
Налоги Состояние Тип
НДС оплачивается отдельно С отделкой Офисное

Организовать просмотр

Я даю согласие на обработку моих персональных данных в соответствии с Условиями

Другие помещения в данном бизнес-центре

Площадь: 53.2 м2

  • Этаж: 6
  • Тип помещения: Офисное
  • Состояние: С отделкой
  • Наличие мебели: Без мебели
  • Стоимость: 15000 руб. за м2 в год

Площадь: 55.1 м2

  • Этаж: 6
  • Тип помещения: Офисное
  • Состояние: С отделкой
  • Наличие мебели: Без мебели
  • Стоимость: 15000 руб. за м2 в год

Площадь: 165 м2

  • Этаж: 4
  • Тип помещения: Офисное
  • Состояние: С отделкой
  • Наличие мебели: Без мебели
  • Стоимость: 17000 руб. за м2 в год