Авиамоторная
Автозаводская
Автозаводская (МЦК)
Академическая
Александровский сад
Алексеевская
Алма-Атинская
Алтуфьево
Аннино
Арбатская
Аэропорт
Бабушкинская
Багратионовская
Баррикадная
Бауманская
Беговая
Белорусская
Беляево
Бибирево
Библиотека им. Ленина
Битцевский парк
Борисово
Боровицкая
Ботанический сад
Ботанический сад (МЦК)
Братиславская
Бульвар Адмирала Ушакова
Бульвар Дмитрия Донского
Бунинская аллея
Варшавская
ВДНХ
Владыкино
Водный стадион
Войковская
Волгоградский проспект
Волжская
Волоколамская
Воробьевы горы
Выставочная
Выхино
Деловой центр
Динамо
Дмитровская
Добрынинская
Домодедовская
Достоевская
Дубровка
Жулебино
Зябликово
Измайловская
Калужская
Кантемировская
Каховская
Каширская
Киевская
Китай-город
Кожуховская
Коломенская
Комсомольская
Коньково
Красногвардейская
Краснопресненская
Красносельская
Красные ворота
Крестьянская застава
Кропоткинская
Крылатское
Кузнецкий мост
Кузьминки
Кунцевская
Курская
Кутузовская
Кутузовская (МЦК)
Ленинский проспект
Лермонтовский проспект
Лесопарковая
Ломоносовский проспект
Лубянка
Люблино
Марксистская
Марьина роща
Марьино
Маяковская
Медведково
Международная
Менделеевская
Митино
Минская
Молодежная
Нагатинская
Нагорная
Нахимовский проспект
Новогиреево
Новокосино
Новокузнецкая
Новослободская
Новоясеневская
Новые Черёмушки
Октябрьская
Октябрьское поле
Орехово
Отрадное
Охотный ряд
Павелецкая
Парк культуры
Парк Победы
Партизанская
Первомайская
Перово
Петровско-Разумовская
Печатники
Пионерская
Планерная
Площадь Ильича
Площадь Революции
Полежаевская
Полянка
Пражская
Преображенская площадь
Пролетарская
Проспект Вернадского
Проспект Мира
Профсоюзная
Пушкинская
Пятницкое шоссе
Раменки
Речной вокзал
Рижская
Римская
Рязанский проспект
Савеловская
Свиблово
Севастопольская
Семеновская
Серпуховская
Славянский бульвар
Смоленская
Сокол
Сокольники
Спортивная
Сретенский бульвар
Строгино
Студенческая
Сухаревская
Сходненская
Таганская
Бульвар Рокоссовского (МЦК)
Тверская
Театральная
Текстильщики
Теплый стан
Тимирязевская
Владыкино (МЦК)
Третьяковская
Трубная
Тульская
Тургеневская
Тушинская
Улица 1905 года
Улица Академика Янгеля
Улица Горчакова
Бульвар Рокоссовского
Улица Скобелевская
Улица Старокачаловская
Университет
Филевский парк
Фили
Фрунзенская
Дубровка (МЦК)
Царицыно
Цветной бульвар
Черкизовская
Чертановская
Чеховская
Чистые пруды
Чкаловская
Шаболовская
Шипиловская
Шоссе Энтузиастов
Шоссе Энтузиастов (МЦК)
Щелковская
Щукинская
Электрозаводская
Юго-Западная
Южная
Ясенево
Мякинино
Хорошёвская
ЦСКА
Петровский парк
Верхние Лихоборы
Селигерская
Ховрино
Рассказовка
Новопеределкино
Боровское шоссе
Солнцево
Говорово
Озёрная
Мичуринский проспект
Окружная
Беломорская
Академический
Алексеевский
Алтуфьевский
Арбат
Аэропорт
Бабушкинский
Басманный
Беговой
Бескудниковский
Бибирево
Богородское
Бутырский
Внуково
Войковский
Восточное Дегунино
Восточное Измайлово
Выхино-Жулебино
Гагаринский
Головинский
Гольяново
Даниловский
Дмитровский
Донской
Дорогомилово
Замоскворечье
Западное Дегунино
Зюзино
Измайлово
Коньково
Коптево
Котловка
Красносельский
Крылатское
Кузьминки
Кунцево
Левобережный
Лефортово
Лианозово
Ломоносовский
Люблино
Марфино
Марьина Роща
Метрогородок
Мещанский
Митино
Можайский
Молжаниновский
Москворечье-Сабурово
Нагатино-Садовники
Нагатинский Затон
Нагорный
Нижегородский
Новогиреево
Обручевский
Орехово-Борисово Северное
Останкинский
Отрадное
Очаково-Матвеевское
Перово
Печатники
Покровское-Стрешнево
Преображенское
Пресненский
Проспект Вернадского
Раменки
Ростокино
Рязанский
Савёловский
Свиблово
Северное Измайлово
Северное Медведково
Северное Тушино
Северный
Сокол
Соколиная Гора
Сокольники
Строгино
Таганский
Тверской
Текстильщики
Тёплый Стан
Тимирязевский
Тропарёво-Никулино
Филёвский Парк
Фили-Давыдково
Хамовники
Ховрино
Хорошёво-Мнёвники
Хорошёвский
Царицыно
Черёмушки
Чертаново Северное
Чертаново Южное
Щукино
Южное Медведково
Южное Тушино
Южнопортовый
Якиманка
Ясенево
Бирюлёво Восточное
Бирюлёво Западное
Братеево
Вешняки
Восточный
Зябликово
Ивановское
Капотня
Косино-Ухтомский
Крюково
Куркино
Лосиноостровский
Марьино
Матушкино
Новокосино
Ново-Переделкино
Орехово-Борисово Южное
Савёлки
Северное Бутово
Силино
Солнцево
Старое Крюково
Чертаново Центральное
Южное Бутово
Ярославский
Внуковское, поселение
Вороновское, поселение
Воскресенское, поселение
Десёновское, поселение
Киевский, поселение
Клёновское, поселение
Кокошкино, поселение
Краснопахорское, поселение
Марушкинское, поселение
Михайлово-Ярцевское, поселение
Московский, поселение
Мосрентген, поселение
Новофёдоровское, поселение
Первомайское, поселение
Роговское, поселение
Рязановское, поселение
Сосенское, поселение
Троицк, поселение
Филимонковское, поселение
Щаповское, поселение
Щербинка, поселение
Некрасовка
Поможем найти офис в аренду!
Инфо
Полезно для собственника
Клиенты и партнеры
Нас рекомендуют
+7 (495) 374-78-37
Поможем найти офис в аренду!
Снять офис
Полезно для собственника
Клиенты и партнеры
Нас рекомендуют
+7 (495) 374-78-37
Москва, Орджоникидзе д.11 с.11
О компании
О компании
Блог
Сделки
Аналитика
Новости компании
Клиенты и партнеры
Команда Office agency
Вакансии
Новости рынка
Пресс-центр
Рекомендательные письма
Slang
Классы
зданий
А
B
B+
C
Административные
округа
ВАО
ЗАО
САО
СВАО
СЗАО
ЦАО
ЮАО
ЮВАО
ЮЗАО
ТАО
НАО
МО
Метро
Районы
Офисы на продажу
Поиск офисов
ЦАО
Москва-Сити
Лофт
Cнять офис
Сдать офис
+7 (495) 374-78-37
Особняк «1-й Колобовский, 17»
Москва, 1-й Колобовский переулок, 17с1
+7 (495) 374-78-37
Бизнес-центр "Арт-квартал "Московский Шелк""
Увы, офисное помещение уже сдано. Свяжитесь с нами для уточнения информации.
79.6 м2
Адрес:
Москва,
Большой Саввинский переулок
, 12
Тип недвижимости:
Бизнес-центр
Формат объекта:
Лофт
Округ:
ЦАО
Район:
Хамовники
Метро:
Спортивная
(12 минут пешком)
Фрунзенская
(13 минут пешком)
Киевская
(15 минут пешком)
Класс объекта:
B+
Тип помещения:
Офисное
Наличие мебели:
Без мебели
Помещение с отделкой, готово к въезду
ПАРКОВКА
Подземная:
да
коэф. 1/100
16 000 руб.
Наземная:
да
коэф. 1/100
16 000 РУБ.
Городская:
да
Платная
60 руб. в час
В бизнес-центре "Московский шелк"., в аренду предлагается офисное помещение площадью 79 кв. м. Здание удобно расположено в пешей доступности от метро "Спортивная". В здании имеется все необходимое для комфортной работы арендаторов.
Площадь, м2
Этаж
Стоимость, м2/год
Стоимость в месяц
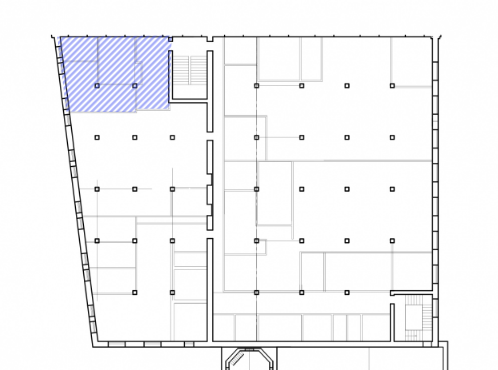
79.6
3
22 000 руб.
145 933 руб.
План помещения
Налоги
Состояние
Тип
НДС оплачивается отдельно
С отделкой
Офисное
Организовать просмотр
http://officeagency.ru/object/biznes-centr-moskovskiy-shelk-0-14115
Я даю согласие на обработку моих персональных данных в соответствии с
Условиями
Другие помещения в данном бизнес-центре
Площадь: 62.2 м
2
Этаж: 1
Тип помещения: Офисное
Состояние: С отделкой
Наличие мебели: Без мебели
Стоимость: 22000 руб. за м
2
в год
Площадь: 66 м
2
Этаж: 1
Тип помещения: Офисное
Состояние: С отделкой
Наличие мебели: Без мебели
Стоимость: 17796 руб. за м
2
в год
Площадь: 109 м
2
Этаж: 1
Тип помещения: Офисное
Состояние: С отделкой
Наличие мебели: Без мебели
Стоимость: 17000 руб. за м
2
в год