Поможем найти офис в аренду!
Снять офис
Москва, Орджоникидзе д.11 с.11

Бизнес-центр "Полларс"

Увы, офисное помещение уже сдано. Свяжитесь с нами для уточнения информации.
  • Помещение 170 м2 Бизнес-центр Полларс – фото объекта
Помещение 170 м2 Бизнес-центр Полларс – фото объекта
170 м2
Адрес: Москва, Дербеневская набережная, 11
Тип недвижимости: Бизнес-центр
Округ: ЮАО
Метро: Пролетарская (16 минут пешком)
Крестьянская застава (16 минут пешком)
Павелецкая (16 минут пешком)
Класс объекта: B
Тип помещения: Офисное
Наличие мебели: Без мебели
ПАРКОВКА
Подземная:
да
коэф. 1/10015 000 руб.
Наземная:
да
коэф. 1/10012 000 руб.
Городская:
да
Платная60 руб. в час
В Бизнес-центре "Полларс" сдается офисное помещение площадью 170 кв.м. Бизнес-центра расположен по адресу Дербеневская набережная дом 11 в районе деловой активности города Москвы, недалеко от станции метро Павелецкая. На территории Бизнес-центра находится вместительная подземная и наземная парковка. Офисы предлагаются с полной отделкой, готовы к въезду.
Площадь, м2 Этаж Стоимость, м2/год Стоимость в месяц
170 2 14 500 руб. 205 417 руб.


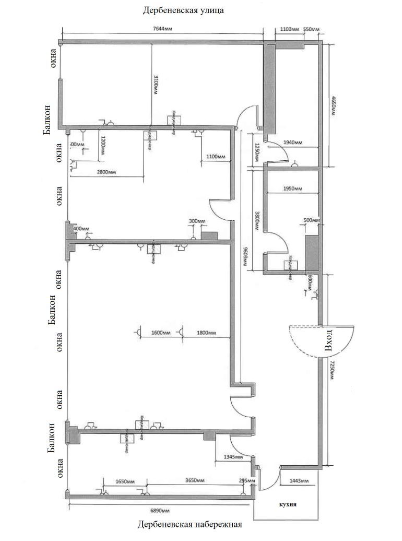
План помещения

Помещение 170 м2
Налоги Состояние Тип
УСН С отделкой Офисное

Организовать просмотр

Я даю согласие на обработку моих персональных данных в соответствии с Условиями

Другие помещения в данном бизнес-центре

Площадь: 69 м2

  • Этаж: 3
  • Тип помещения: Офисное
  • Состояние: С отделкой
  • Наличие мебели: Без мебели
  • Стоимость: 14000 руб. за м2 в год

Площадь: 70 м2

  • Этаж: 3
  • Тип помещения: Офисное
  • Состояние: Под отделку
  • Наличие мебели: Без мебели
  • Стоимость: 17000 руб. за м2 в год

Площадь: 70.6 м2

  • Этаж: 3
  • Тип помещения: Офисное
  • Состояние: С отделкой
  • Наличие мебели: Без мебели
  • Стоимость: 14900 руб. за м2 в год