Поможем найти офис в аренду!
Снять офис
Москва, Орджоникидзе д.11 с.11

Бизнес-центр "Серебрякова"

Увы, офисное помещение уже сдано. Свяжитесь с нами для уточнения информации.
  • Помещение 63.6 м2 Бизнес-центр Серебрякова – фото объекта
Помещение 63.6 м2 Бизнес-центр Серебрякова – фото объекта
63.6 м2
Адрес: Москва, Проезд Серебрякова, 6
Тип недвижимости: Бизнес-центр
Округ: СВАО
Район: Свиблово
Метро: Ботанический сад (МЦК) (8 минут пешком)
Ботанический сад (14 минут пешком)
Свиблово (14 минут пешком)
Класс объекта: B
Тип помещения: Офисное
Наличие мебели: Без мебели
ПАРКОВКА
Подземная:
нет
Наземная:
да
коэф. 1/1005 000 руб.
Городская:
да
Платная40 руб. в час
В бизнес-центре "Серебрякова" в аренду предлагается офисный блок, площадью 63,6 м2 на 5 этаже. Коммерческие условия: 14 500 руб. м2 в год, УСН, включая коммунальные и эксплуатационные расходы. В блоке выполнена офисная отделка. (Представлены фотографии типовой отделки). Планировка- кабинетная. Офис полностью готов к въезду.
Площадь, м2 Этаж Стоимость, м2/год Стоимость в месяц
63.6 5 14 500 руб. 76 850 руб.


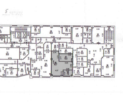
План помещения

Помещение 63.6 м2
Налоги Состояние Тип
УСН С отделкой Офисное

Организовать просмотр

Я даю согласие на обработку моих персональных данных в соответствии с Условиями

Другие помещения в данном бизнес-центре

Площадь: 54 м2

  • Этаж: 5
  • Тип помещения: Офисное
  • Состояние: С отделкой
  • Наличие мебели: Без мебели
  • Стоимость: 13600 руб. за м2 в год

Площадь: 59 м2

  • Этаж: 2
  • Тип помещения: Офисное
  • Состояние: С отделкой
  • Наличие мебели: Без мебели
  • Стоимость: 13600 руб. за м2 в год

Площадь: 59.5 м2

  • Этаж: 4
  • Тип помещения: Офисное
  • Состояние: С отделкой
  • Наличие мебели: Без мебели
  • Стоимость: 17000 руб. за м2 в год