Поможем найти офис в аренду!
Снять офис
Москва, Орджоникидзе д.11 с.11

Бизнес-центр "Щербаковский"

  • Помещение 253.3 м2 Бизнес-центр Щербаковский – фото объекта
Помещение 253.3 м2 Бизнес-центр Щербаковский – фото объекта
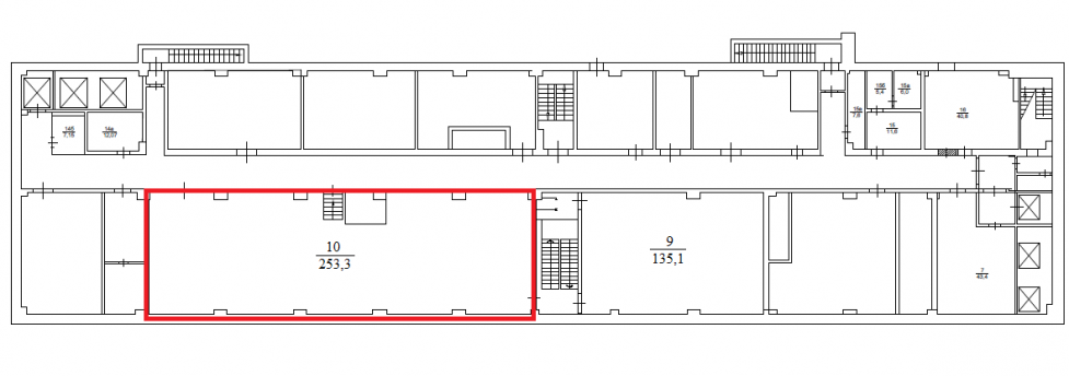
253.3 м2
Адрес: Москва, Щербаковская, 3
Тип недвижимости: Бизнес-центр
Округ: ВАО
Метро: Семеновская (3 минуты пешком)
Электрозаводская (12 минут пешком)
Измайлово (МЦК) (15 минут пешком)
Класс объекта: B
Тип помещения: Офисное
Наличие мебели: Без мебели
ПАРКОВКА
Подземная:
нет
Наземная:
да
коэф. 1/8015 000 руб.
Городская:
да
Платная40 руб. в час
Торгово-деловой центр выгодно расположен в 2-минутной шаговой доступности от станции метро «Семёновская» Арбатско-Покровской линии по соседству с ТРЦ «Семёновский». Тринадцатиэтажное административное здание с высококачественной дизайнерской отделкой офисов и помещений общего пользования. Стандарт класса «В+».
Площадь, м2 Этаж Стоимость, м2/год Стоимость в месяц
253.3 1 47 374 руб. 999 986 руб.


План помещения

Помещение 253.3 м2
Налоги Состояние Тип
УСН Под отделку Офисное

Организовать просмотр

Я даю согласие на обработку моих персональных данных в соответствии с Условиями

Другие помещения в данном бизнес-центре

Площадь: 50.29 м2

  • Этаж: 10
  • Тип помещения: Офисное
  • Состояние: С отделкой
  • Наличие мебели: Без мебели
  • Стоимость: 16941 руб. за м2 в год

Площадь: 50.29 м2

  • Этаж: 7
  • Тип помещения: Офисное
  • Состояние: С отделкой
  • Наличие мебели: Без мебели
  • Стоимость: 20998 руб. за м2 в год

Площадь: 50.77 м2

  • Этаж: 9
  • Тип помещения: Офисное
  • Состояние: С отделкой
  • Наличие мебели: Без мебели
  • Стоимость: 17963 руб. за м2 в год