Поможем найти офис в аренду!
Снять офис
Москва, Орджоникидзе д.11 с.11

Коворкинг "Белые сады"

Увы, офисное помещение уже сдано. Свяжитесь с нами для уточнения информации.
  • Помещение 18 м2 Коворкинг Белые сады – фото объекта
  • Помещение 18 м2 Коворкинг Белые сады – фото объекта
  • Помещение 18 м2 Коворкинг Белые сады – фото объекта
Помещение 18 м2 Коворкинг Белые сады – фото объектаПомещение 18 м2 Коворкинг Белые сады – фото объектаПомещение 18 м2 Коворкинг Белые сады – фото объекта
18 м2
Адрес: Москва, Лесная, 7
Тип недвижимости: Коворкинг
Округ: ЦАО
Район: Тверской
Метро: Белорусская (3 минуты пешком)
Менделеевская (8 минут пешком)
Новослободская (9 минут пешком)
Класс объекта: А
Тип помещения: Офисное
Наличие мебели: С мебелью
ПАРКОВКА
Подземная:
да
27 000 руб.
Наземная:
нет
Городская:
да
Платная200 руб. в час
В аренду предлагается не обычный офис, а полный спектр представительских и офисных услуг, включая возможность использования деловой гостиной, кофе-бара, а также переговорных комнат. В арендную плату входит: НДС; коммунальные и эксплуатационные расходы; услуги ресепшн - выполняют все функции секретарей (прием звонков и корреспонденции, встреча гостей и т.д.); обслуживание: чай, кофе, минеральная вода; использование высокоскоростного проводного Интернета и защищенного Wi-Fi; использование общих переговорных комнат; пользование деловой гостиной и мини-кухней; услуги штатного персонала (охрана, уборка, IT специалист); консьерж-услуги. В наличии 2 конференц-зала (до 50 человек) + 2 переговорные комнаты (от 5 до 20 человек).
Площадь, м2 Этаж Стоимость, м2/год Стоимость в месяц
18 11 166 667 руб. 250 000 руб.


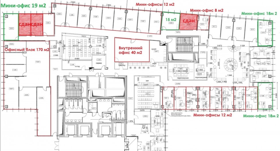
План помещения

Помещение 18 м2
Налоги Состояние Тип
НДС включен в стоимость С отделкой Офисное

Организовать просмотр

Я даю согласие на обработку моих персональных данных в соответствии с Условиями

Другие помещения в данном бизнес-центре

Площадь: 8 м2

  • Этаж: 11
  • Тип помещения: Офисное
  • Состояние: С отделкой
  • Наличие мебели: С мебелью
  • Стоимость: 135000 руб. за м2 в год

Площадь: 12 м2

  • Этаж: 11
  • Тип помещения: Офисное
  • Состояние: С отделкой
  • Наличие мебели: С мебелью
  • Стоимость: 160000 руб. за м2 в год

Площадь: 15 м2

  • Этаж: 11
  • Тип помещения: Офисное
  • Состояние: С отделкой
  • Наличие мебели: С мебелью
  • Стоимость: 160000 руб. за м2 в год