Поможем найти офис в аренду!
Снять офис
Москва, Орджоникидзе д.11 с.11

Особняк "Гагаринский"

Увы, офисное помещение уже сдано. Свяжитесь с нами для уточнения информации.
  • Помещение 192.3 м2 Особняк Гагаринский – фото объекта
Помещение 192.3 м2 Особняк Гагаринский – фото объекта
192.3 м2
Адрес: Москва, Гагаринский переулок, 29
Тип недвижимости: Особняк
Округ: ЦАО
Район: Хамовники
Метро: Смоленская (8 минут пешком)
Кропоткинская (9 минут пешком)
Парк культуры (11 минут пешком)
Класс объекта: B+
Тип помещения: Офисное
Наличие мебели: Без мебели
ПАРКОВКА
Подземная:
нет
Наземная:
нет
Городская:
да
Платная60 руб. в час
В бизнес-центр класса В, в аренду предлагается помещение площадью 192,3 кв. м. Бизнес-центр класса В, оснащен всем необходимым для комфортной работы арендаторов. В здании проведены все современные коммуникации, в том числе вентиляция и кондиционирование. В помещении выполнена качественна отделка, планировка - кабинетная.
Площадь, м2 Этаж Стоимость, м2/год Стоимость в месяц
192.3 2 22 000 руб. 352 550 руб.


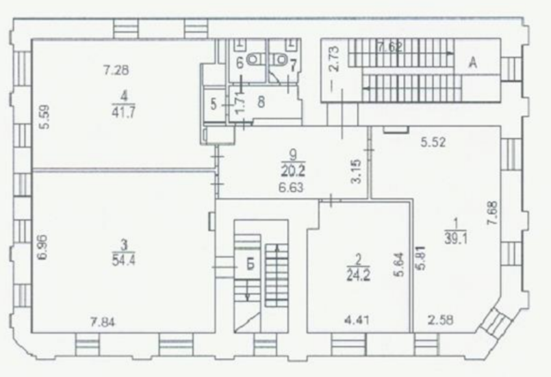
План помещения

Помещение 192.3 м2
Налоги Состояние Тип
НДС оплачивается отдельно С отделкой Офисное

Организовать просмотр

Я даю согласие на обработку моих персональных данных в соответствии с Условиями

Другие помещения в данном бизнес-центре

Площадь: 177 м2

  • Этаж: -1
  • Тип помещения: Офисное
  • Состояние: С отделкой
  • Наличие мебели: Без мебели
  • Стоимость: 22000 руб. за м2 в год

Площадь: 190.8 м2

  • Этаж: 3
  • Тип помещения: Офисное
  • Состояние: С отделкой
  • Наличие мебели:
  • Стоимость: 37000 руб. за м2 в год